VOG-W
Neufahrn Terrassen _ Wohnen
Neubau einer Wohnanlage (32 WHG) mit TG in Neufahrn
Bauherr: BGV
Bauvolumen: ca. 11.730 m3
Planung/Bauzeit: 2022-2023
Leistungsphasen: 5 HOAI
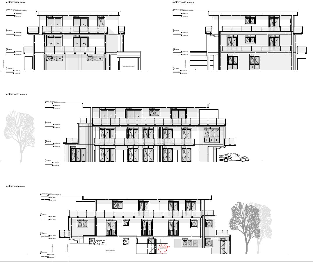
Neufahrn Terrassen _ Wohnen
Neubau einer Wohnanlage (32 WHG) mit TG in Neufahrn
Bauherr: BGV
Bauvolumen: ca. 11.730 m3
Planung/Bauzeit: 2022-2023
Leistungsphasen: 5 HOAI